projects
about
press
contact
Follow
Follow
Follow
Follow
Follow
Follow
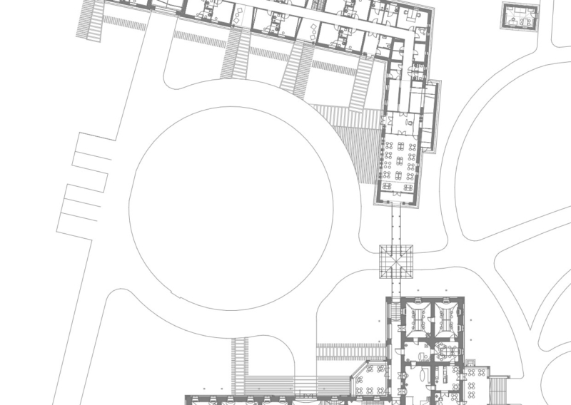
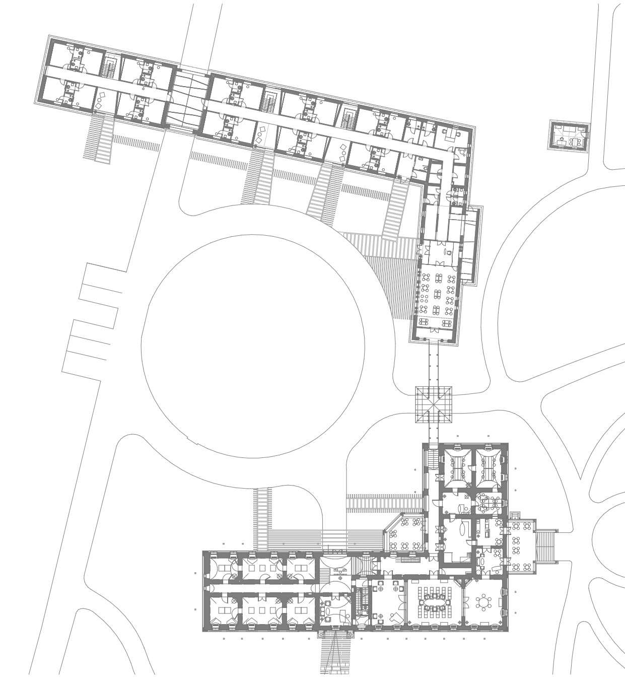
Geszt, Istálló-inaslak
Helyszín
Geszt
Építés éve
2024