projects
about
press
contact
Follow
Follow
Follow
Follow
Follow
Follow
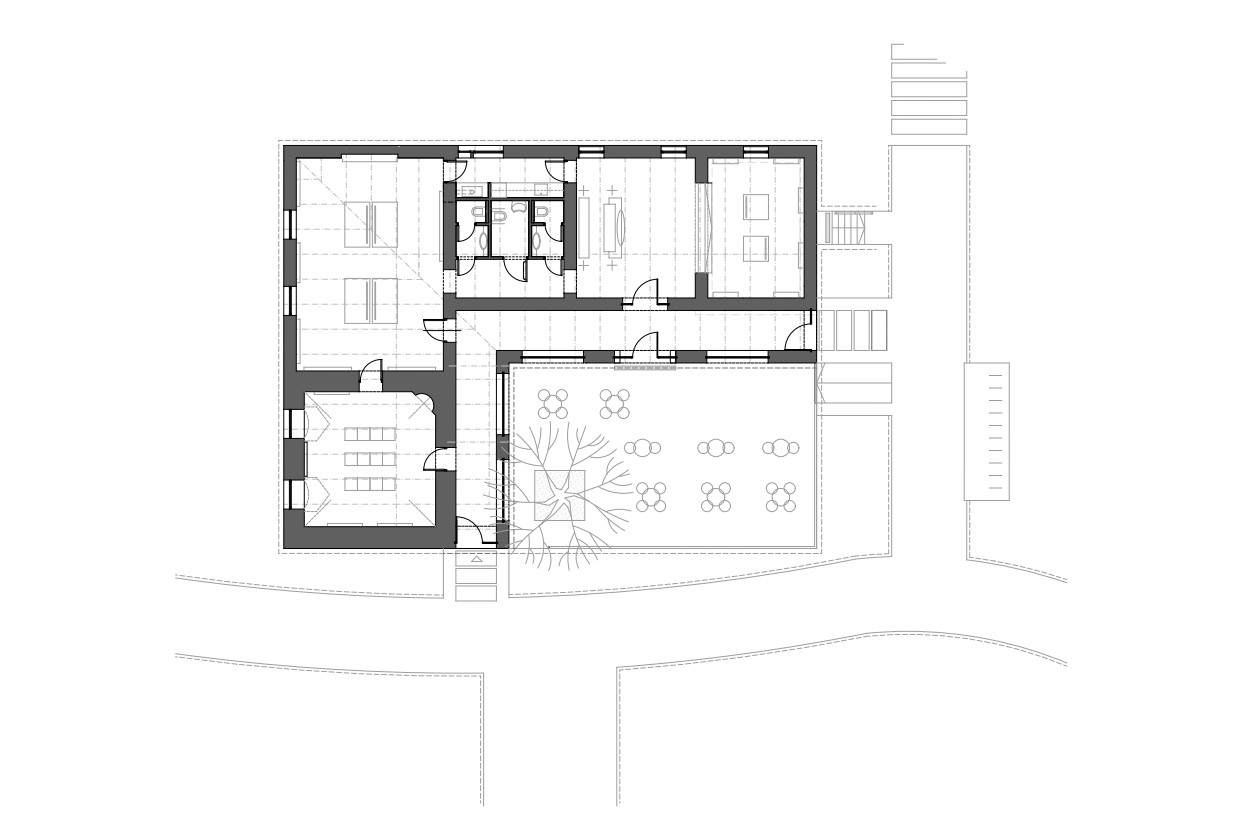
Geszt, Tiszttartó ház
Helyszín
Geszt
Építés éve
2024
Társtervező
Daw Építész Stúdió