projects
about
press
contact
Follow
Follow
Follow
Follow
Follow
Follow
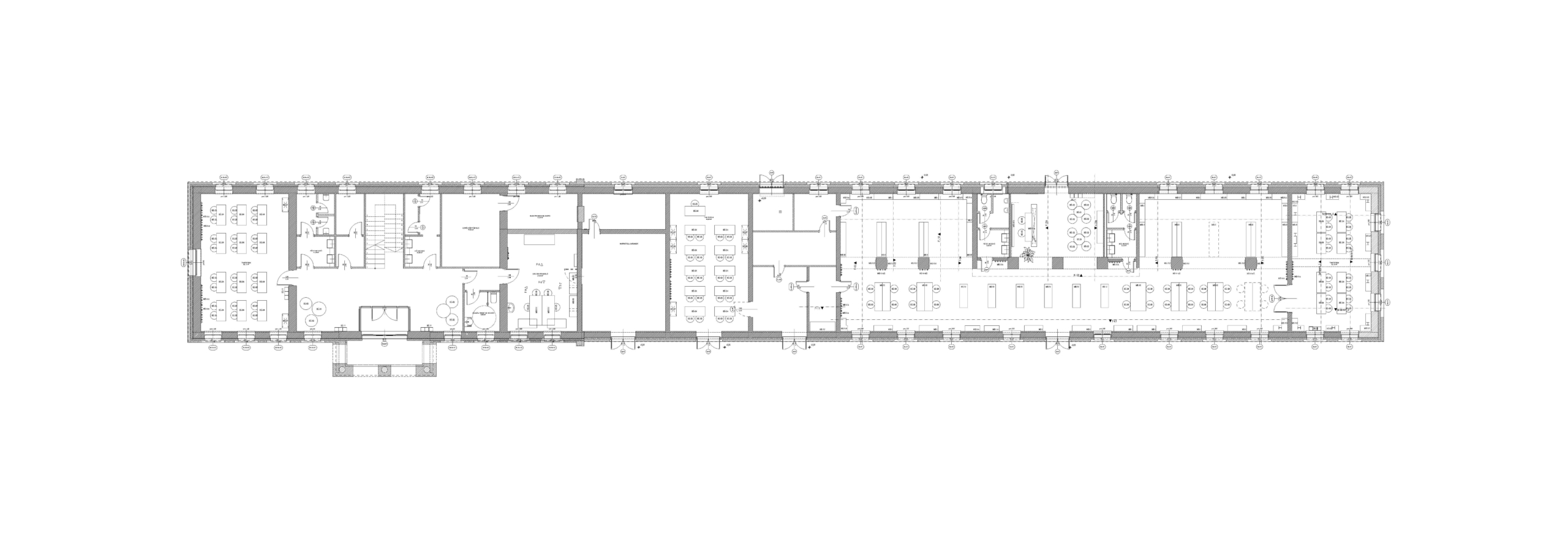
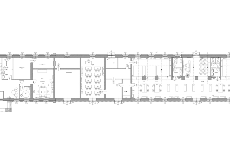
Mezőhegyes, Tanműhely
Helyszín
Mezőhegyes
Építés éve
2022
Társtervező
Daw Építész Stúdió